Jana Keggenhoff Immobilien

Exposé

Miete
Halle
Halle/Lager/Produktion

Lager- und Produktionshalle in Arnsberg

Kaltmiete 2.400 €
Miete
Halle
Halle/Lager/Produktion

Lager- und Produktionshalle in Arnsberg

Kaltmiete 2.400 €
Ausstattung
Standard
Rampe vorhanden
Ja

Beschreibung

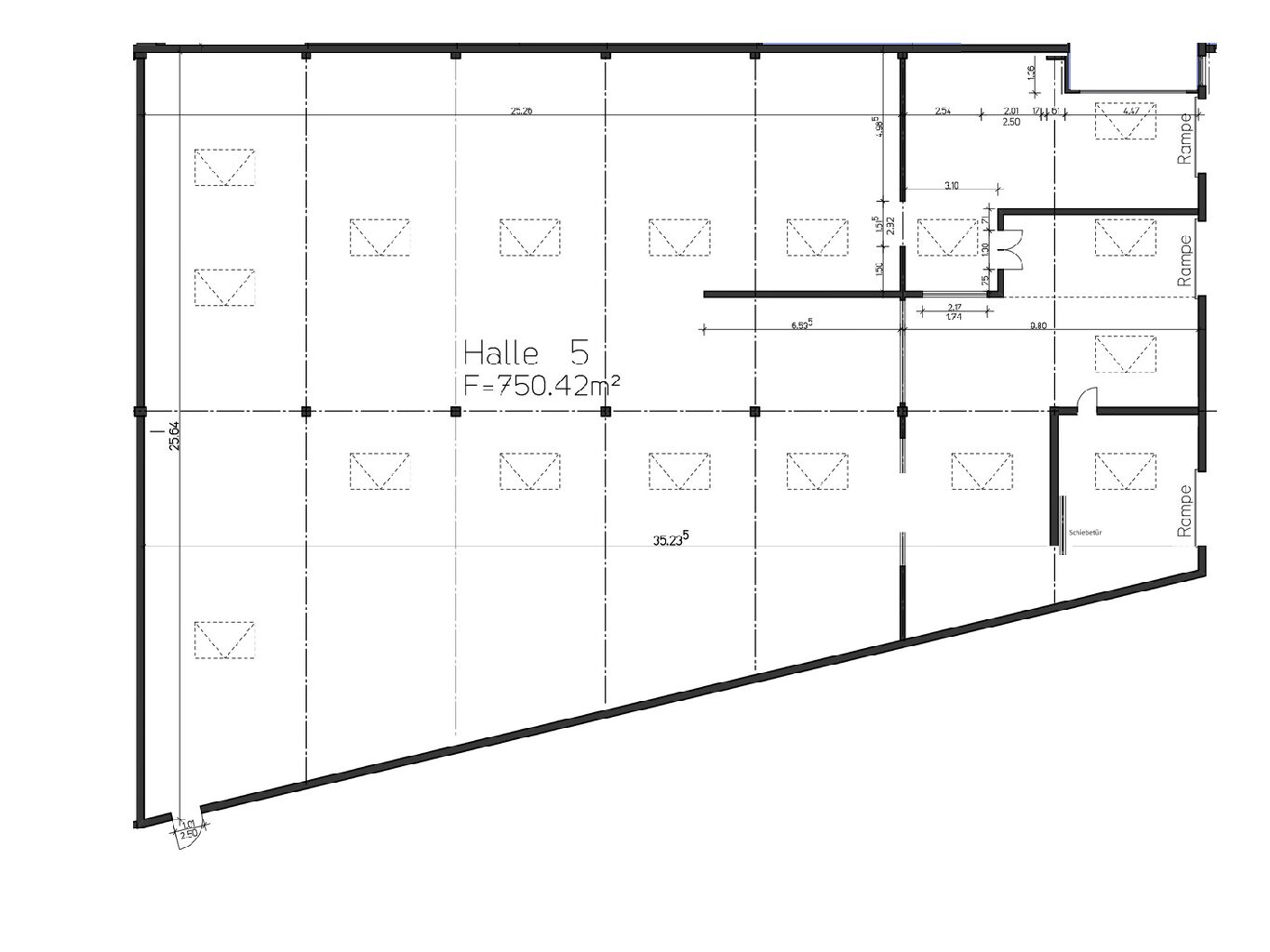
Diese Produktions- und Lagerhalle hat mit über 750m² und einer Deckenhöhe von 3,50m viel zu bieten. Sie können die Halle über drei Rampen und einen separaten Eingang erreichen. Hinter einer der Rampen befindet sich ein abgetrennter, abschließbarer Raum, der als Anlieferungsbereich genutzt werden kann. Die dazugehörige Rampe ist über ein elektronisches Zahlenschloss zugänglich. Dadurch können Ihre Lieferanten sogar anliefern, wenn Sie nicht vor Ort sind – ohne, dass diese Zugang zur gesamten Halle erhalten.
Die Halle ist beheizbar, beleuchtet und mit einem Wasseranschluss ausgestattet. Sie befindet sich in einem gepflegten Zustand und ist selbstverständlich trocken. Der Gewerbehallenkomplex wird von einem Hausmeisterservice betreut, der regelmäßig vor Ort ist und als Ansprechpartner für die Mieter fungiert. Zur angebotenen Fläche von 750m² können bei Bedarf noch ein kleines Meisterbüro und eine weitere Lagermöglichkeit von 220m² hinzugenommen werden. Auch die nachträgliche Installation eines WCs ist möglich. Sprechen sie mich gerne an. Ich freue mich auf Ihre Anfrage.

Mehr anzeigenWeniger anzeigen

Objektdaten

Ort
59823 Arnsberg
Gesamtfläche
ca. 6.197,10 m²
Lagerfläche
ca. 750 m²
Kaltmiete
2.400 €
Nebenkosten
450 €
Provisionspflichtig
Ja
Mieterprovision
1 Monatskaltmiete zzgl. MwSt.
Provisionshinweis
Die genannte Maklercourtage ist nach Abschluss des Mietvertrags vom Mieter an Jana Keggenhoff Immobilien nach erfolgter Rechnungsstellung zu zahlen.
Kautions Hinweis
1 Monatskaltmiete
Verfügbar ab
sofort
Objektart
Halle/Lager/Produktion
Nutzungsart
Gewerbe
Verfügbarkeit
Verfügbar
Vermarktungsart
Miete
Baujahr
1970
Letzte Modernisierung
2021
Zustand
Gepflegt
Energieausweisliegt vor
Energie­ausweistypVerbrauchsausweis
Erstellt am05.11.2020
Gültig bis05.11.2030
PrimärenergieträgerGas
EnergieeffizienzklasseA
Endenergiebedarf Strom6.2 kWh/(m²·a)
Endenergiebedarf Wärme37.8 kWh/(m²·a)
HeizungsartZentralheizung
HeizungsartZentralheizung

Lage

Die Halle befindet sich in einem großen Gewerbehallenkomplex und liegt in zentraler Lage innerhalb eines Gewerbegebietes von Arnsberg-Oeventrop. Die Autobahn A46 / Freienohl erreichen Sie in wenigen Minuten.

Die angegebenen Preise (Miete, Nebenkosten, Provision) verstehen sich zzgl. der gesetzlich geltenden MwSt. von derzeit 19%.

Anfrage

Kontakt aufnehmen

Sie haben Interesse am Objekt? Teilen Sie mir gerne Ihre Kontaktdaten mit und ich melde mich zeitnah bei Ihnen.

* Pflichtfelder

Kontakt

Jana Keggenhoff

Anschrift

Jana Keggenhoff Immobilien
Mescheder Straße 16
59846 Sundern