Jana Keggenhoff Immobilien

Exposé

Miete
Büro/Praxis

Erstklassige Büro- und Praxisfläche in Sundern-City

Kaltmiete 3.022 €
Miete
Büro/Praxis

Erstklassige Büro- und Praxisfläche in Sundern-City

Kaltmiete 3.022 €
Parkett
Ja
Personenaufzug
Ja
Parken im Freien
Ja
Barrierefrei
Ja
Gäste WC
Ja

Beschreibung

Erstbezug nach hochwertiger Sanierung: Modernes Arbeiten in stilvollem Ambiente

Im Herzen von Sundern erwartet Sie eine frisch sanierte Büro- bzw. Praxisfläche, die höchsten Ansprüchen an Komfort, Funktionalität und Design gerecht wird. Die Sanierung erfolgte mit viel Liebe zum Detail und unter Einsatz hochwertiger Materialien.

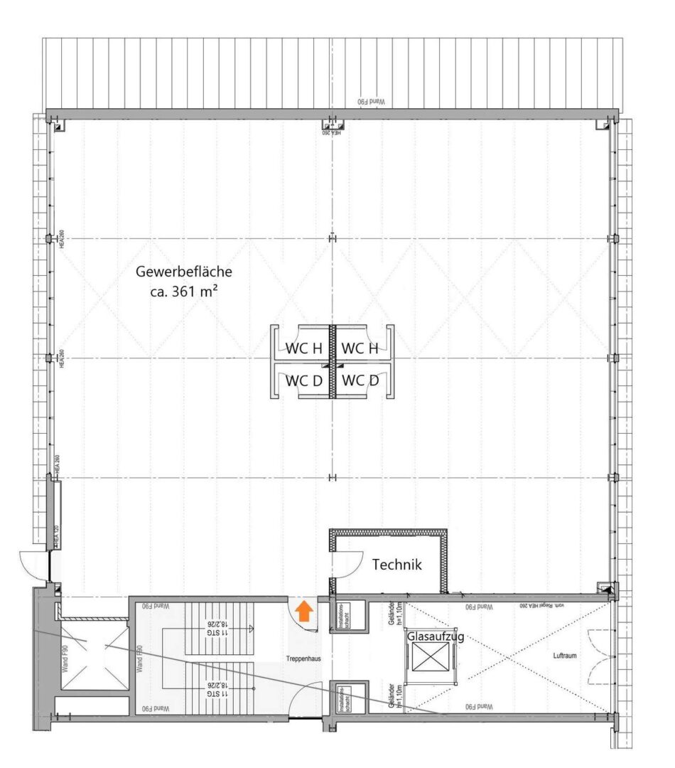
Auf einer Gesamtfläche von ca. 378 m² finden Sie eine großzügige Gewerbefläche (rund 361 m²) sowie getrennte WC-Anlagen für Damen und Herren.

Die offene Raumgestaltung mit loftähnlichem Charakter bietet Ihnen flexible Nutzungsmöglichkeiten. Ob als weitläufiger Arbeitsplatz, als Praxisfläche oder durch modulare Abtrennungen in einzelne Büros gegliedert - hier ist alles möglich. Der edle Echtholz-Stäbchenparkettboden verleiht dem Raum eine warme, repräsentative Note, während die ausgedehnten Fensterfronten nicht nur für ein lichtdurchflutetes Ambiente, sondern auch für einen beeindruckenden Ausblick sorgen.

Dank der optimalen Tageslichtverhältnisse eignet sich die Fläche ebenfalls hervorragend als Ausstellungs- oder Präsentationsraum - Ihre Produkte und Dienstleistungen kommen hier bestens zur Geltung.

Als besonderes Highlight verbindet ein gläserner Personenaufzug die einzelnen Etagen und sorgt für einen komfortablen, barrierefreien Zugang.

Beheizt wird die Immobilie über eine Fußbodenheizung, betrieben mit einer effizienten, strombetriebenen Wärmepumpe - umweltfreundlich und zugleich zukunftsorientiert.

Direkt vor dem Objekt stehen ausreichend PKW-Stellplätze für Sie und Ihre Besucher bereit.

Diese Immobilie überzeugt durch eine gelungene Kombination aus hochwertiger Ausstattung und einem besonderen Ambiente, welches inspiriert und motiviert.

Nutzen Sie die Chance auf einen Erstbezug in einem rundum erneuerten und einzigartigen Umfeld und starten Sie ihr Business in einer repräsentativen Arbeitsumgebung, die garantiert einen besonderen Eindruck hinterlässt!

Ein Glasfaseranschluss wurde schon in Auftrag gegeben. Die Fertigstellung wird in Kürze erfolgen. Bis zur vollständigen Aktivierung des Anschlusses gewährleistet der Anbieter eine stabile und schnelle Internetverbindung.

-------------------------------------------

Flexible Flächenoptionen im selben Haus
Neben der großzügigen Büro- bzw. Praxisfläche von rund 380 m² im 3. Obergeschoss stehen Ihnen im 1. Obergeschoss weitere 370 m² zur Verfügung. Diese sind in zwei Büroeinheiten von jeweils ca. 180 m² aufgeteilt.

Damit bietet Ihnen die Immobilie unterschiedliche Größenvarianten – vom kompakten Büro mit ca. 180 m² bis hin zur großzügigen Gesamtfläche von über 750 m² – und passt sich Ihren individuellen Bedürfnissen optimal an.

Die angegebenen Preise (Miete, Nebenkosten, Provision) verstehen sich zzgl. der gesetzlich geltenden MwSt. von derzeit 19%.

Mehr anzeigenWeniger anzeigen

Objektdaten

Ort
59846 Sundern (Sauerland)
Gesamtfläche
ca. 378 m²
Bürofläche
ca. 378 m²
Kaltmiete
3.022 €
Nebenkosten
755 €
Provisionspflichtig
Ja
Mieterprovision
1,19 MM (inkl. MwSt.)
Provisionshinweis
Die genannte Maklercourtage ist nach Abschluss des Kaufvertrags vom Käufer an Jana Keggenhoff Immobilien nach erfolgter Rechnungsstellung zu zahlen.
Kautions Hinweis
2 MM
Verfügbar ab
01.11.2025
Objektart
Büro/Praxis
Nutzungsart
Gewerbe
Verfügbarkeit
Verfügbar
Vermarktungsart
Miete
Energieausweisbei Besichtigung
PrimärenergieträgerStrom
HeizungsartWärmepumpe
EnergieträgerElektro

Lage

Entdecken Sie eine attraktive Büro- oder Praxisfläche im Herzen von Sundern - ein Standort, der durch seine zentrale Lage und exzellente Infrastruktur gleichermaßen überzeugt.

Diese Immobilie bietet ideale Voraussetzungen für Unternehmen und Dienstleister, die Wert auf Sichtbarkeit, Erreichbarkeit und ein professionelles Umfeld legen. Die Umgebung zeichnet sich durch eine hervorragende Anbindung an den öffentlichen Nahverkehr aus, was eine schnelle und unkomplizierte Verbindung in nahegelegene Städte wie Arnsberg oder Dortmund ermöglicht. Auch für den überregionalen Verkehr ist bestens gesorgt: Die nahegelegene Autobahn A46 gewährleistet eine zügige Erreichbarkeit für Geschäftspartner und Kunden.

Nutzen Sie diese besondere Gelegenheit, Ihr Unternehmen in Sunderns Stadtmitte zu etablieren und profitieren Sie von einem Standort, der heute wie in Zukunft mit besten Perspektiven überzeugt.

Anfrage

Kontakt aufnehmen

Sie haben Interesse am Objekt? Teilen Sie mir gerne Ihre Kontaktdaten mit und ich melde mich zeitnah bei Ihnen.

* Pflichtfelder

Kontakt

Jana Keggenhoff

Anschrift

Jana Keggenhoff Immobilien
Mescheder Straße 16
59846 Sundern