Jana Keggenhoff Immobilien

Exposé

Kauf
Haus

Vielseitige Immobilie in Sundern-Endorf

Kaufpreis 150.000 €
Kauf
Haus

Vielseitige Immobilie in Sundern-Endorf

Kaufpreis 150.000 €
Parken im Freien
Ja
Keller
Ja
Abstellraum
Ja

Beschreibung

Wichtig:
Aktuell ist hier eine Nutzung als Gewerbeobjekt (Betrieb für Kunststoff- und Metallverarbeitung) genehmigt. Eine andere Art der Nutzung (z.B. Wohnen) ist in Abstimmung mit der Stadt Sundern möglich und muss von dort entsprechend genehmigt werden.

--------------------------------------------

Eine nicht alltägliche Immobilie.

Dieses Haus trägt Geschichte in seinen Mauern und jede Menge Möglichkeiten im Herzen. Einst ein Einkaufsladen mitten im Ort - die Bäuerliche. Dann ein Betrieb für Kunststoff- und Metallverarbeitung. Und heute? Eine Chance für etwas ganz Neues.

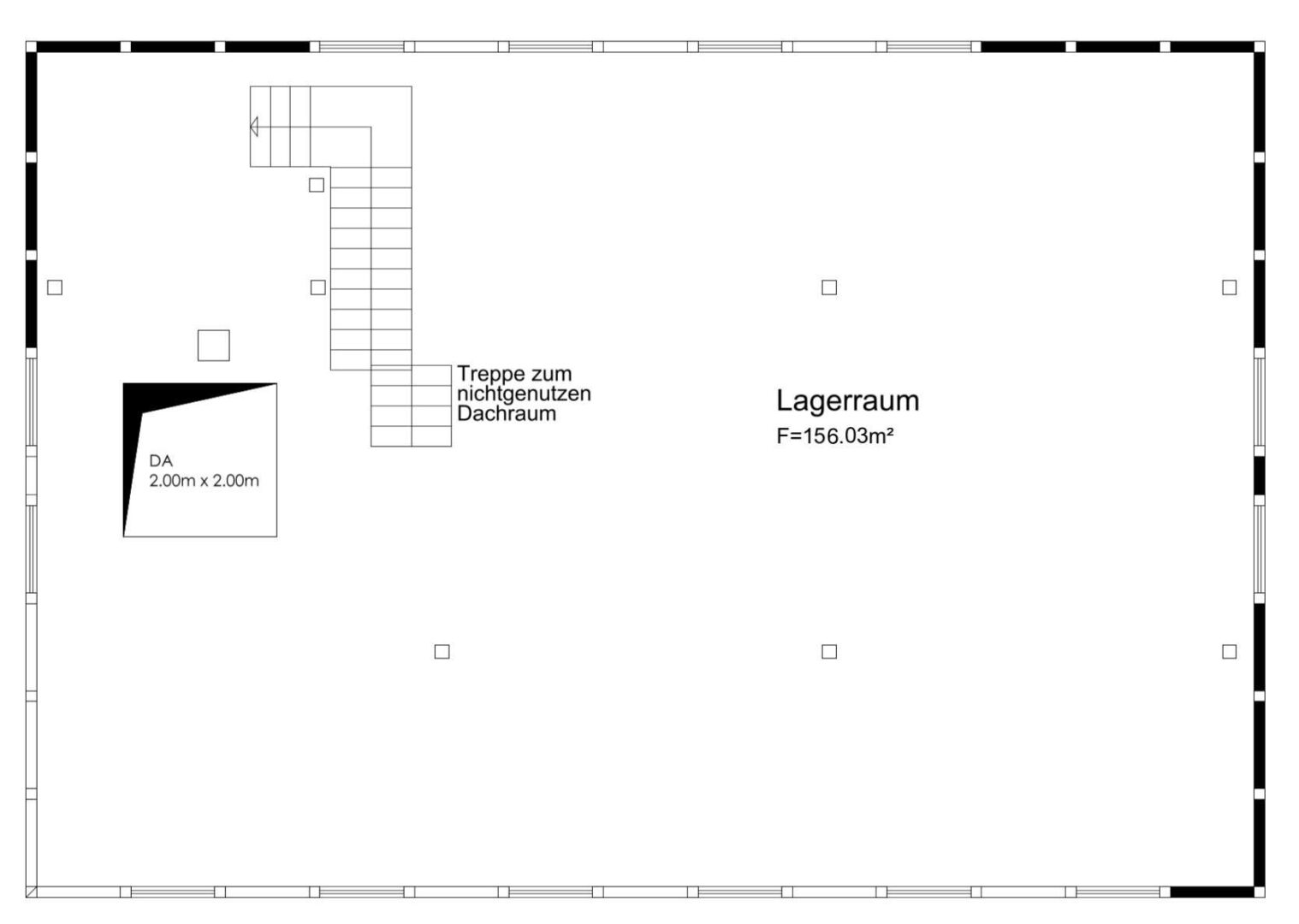
Auf vier Etagen bietet das Haus (Baujahr 1950) rund 488 m² Nutzfläche. Verteilt auf ca. 70 m² im Keller, 150 m² im Erdgeschoss mit Laderampe, 156 m² im Obergeschoss und noch einmal 110 m² im Dachgeschoss.

Das Haus bringt einiges mit - riesengroße Flächen, eine solide Bausubstanz, eine einmalige Optik und die Möglichkeit alles komplett nach eigenen Wünschen zu gestalten. Es muss aber auch einiges gemacht werden.
Die einzelnen Etagen sind nicht ausgebaut. Außer Elektroleitungen befindet sich keine Versorgung innerhalb des Hauses. Sämtliche, weitere Versorgungsleitungen (inkl. Heizungsanlage) müssen neu installiert werden. Ebenso ist der Anschluss an den in der Straße verlaufenden, öffentlichen Kanal bisher nicht gelegt worden.

Das Haus sucht Menschen mit Ideen, mit Visionen und dem Ziel etwas Eigenes zu schaffen. Eine gewerbliche Nutzung im Untergeschoss und oben Wohnraum schaffen? Warum nicht? Oder Sie suchen die perfekte Fläche für einen Yogaraum? Eine Ausstellung oder ein besonderes, großes Wohnhaus? Die Möglichkeiten sind hier wirklich riesig.

Das Haus liegt auf einem ca. 846m² großen Grundstück im Ortsteil Sundern-Endorf, direkt im Dorfmittelpunkt. Aktuell besteht ein Mietverhältnis über die sich am Haus befindliche Tankstation. Monatlich werden derzeit so € 225,- erwirtschaftet. Die Photovoltaikanlage wurde im Jahr 2013 installiert und läuft derzeit über einen Einspeisevergütungsvertrag mit der Westnetz. Im Jahr 2025 wurde hierüber ein Betrag von ca. € 2.450,- eingenommen.

Das Grundstück befindet sich gemäß Flächennutzungsplan der Stadt Sundern in einem Mischgebiet. Es existiert kein Bebauungsplan. In der näheren Umgebung befinden sich sowohl Wohngebäude und als auch gewerblich genutzte Gebäude.

Dieses Haus sollten Sie unbedingt persönlich kennenlernen. Wir freuen uns auf Ihre Online-Anfrage und sind sehr gespannt auf die unterschiedlichen Ideen, die Sie für dieses Haus haben werden.

Mehr anzeigenWeniger anzeigen

Objektdaten

Ort
59846 Sundern (Sauerland)
Wohnfläche
ca. 488 m²
Gesamtfläche
ca. 488 m²
Grundstücksfläche
ca. 843 m²
Kaufpreis
150.000 €
Provisionspflichtig
Ja
Käuferprovision
3,57 % vom Kaufpreis (inkl. MwSt.)
Provisionshinweis
Die genannte Maklercourtage ist nach Abschluss des Kaufvertrags vom Käufer an Jana Keggenhoff Immobilien nach erfolgter Rechnungsstellung zu zahlen.
Verfügbar ab
sofort
Objektart
Haus
Nutzungsart
Wohnen
Verfügbarkeit
Verfügbar
Vermarktungsart
Kauf
Baujahr
1950
EnergieausweisNicht erforderlich

Lage

Diese besondere Immobilie befindet sich in dem malerischen Ortsteil Endorf, einem der schönsten Ortsteile von Sundern im Herzen des Sauerlandes. Endorf zeichnet sich durch seine ruhige und idyllische Lage aus, umgeben von einer beeindruckenden Naturlandschaft mit Wäldern, Wiesen und sanften Hügeln, die zu zahlreichen Freizeitaktivitäten einladen.

Die Anbindung an die umliegenden Städte und Gemeinden ist hervorragend. In nur wenigen Minuten erreichen Sie das Stadtzentrum von Sundern, wo Sie eine Vielzahl von Einkaufsmöglichkeiten, Restaurants und Dienstleistungen finden. Darüber hinaus sind auch die Städte Arnsberg und Meschede schnell erreichbar, was die Lage für Pendler besonders attraktiv macht.

Für Familien bietet Endorf eine gute Infrastruktur mit einem eigenen Kindergarten im Ort und Schulen in der Nähe. Die ruhige Wohngegend ist ideal für Kinder und sorgt für ein angenehmes Wohnklima. Auch die Freizeitgestaltung kommt nicht zu kurz: Zahlreiche Wander- und Radwege sowie Sporteinrichtungen in der Umgebung laden zu aktiven Unternehmungen ein.

Anfrage

Kontakt aufnehmen

Sie haben Interesse am Objekt? Teilen Sie mir gerne Ihre Kontaktdaten mit und ich melde mich zeitnah bei Ihnen.

* Pflichtfelder

Kontakt

Jana Keggenhoff

Anschrift

Jana Keggenhoff Immobilien
Mescheder Straße 16
59846 Sundern